Apartamento à venda com 155m², 3 quartos com vaga
Indique este imóvel e ganhe até R$ 17.819
🔥 BLACK FRIDAY
Evento ExclusivoPrimeiro Imóvel
3 encontros online • FGTS + cashback R$ 4 mil*
+5.000 famílias atendidas • 100% Grátis
*Termos e condições se aplicam
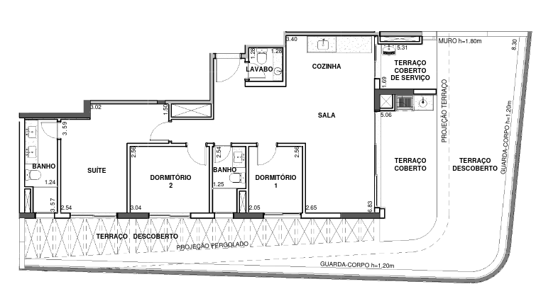
Opções de planta
155 m²
3 Quartos
1 vagas
2 banheiros
Localização
Rua dos Pinheiros, 585 - Pinheiros - SP
Estágio da Obra
Em Obras
Incorporadora
Stan
Como é morar no Bioarq Pinheiros
Áreas de Convívio e Lazer
Brinquedoteca
Churrasqueira
Elevador social
Espaço gourmet
Fitness
Fitness ao ar livre
Piscina Adulto
Piscina infantil
Portaria
Salão de festas
Segurança 24 horas
Solarium

















