Apartamento à venda com 37m², 1 quarto com vaga
Indique este imóvel e ganhe até R$ 3.876
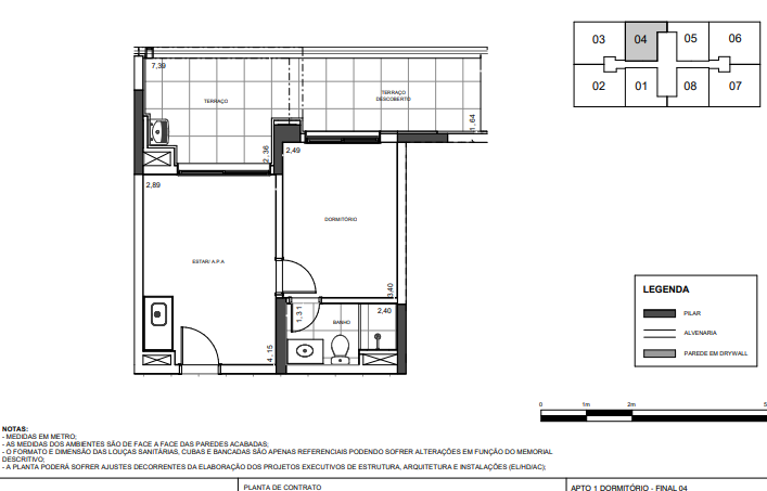
Opções de planta
37 m²
1 Quartos
1 vagas
1 banheiros
Localização
Rua Ministro Sinésio Rocha, 837 - Jardim Vera Cruz - SP
Estágio da Obra
Em Obras
Incorporadora
R.A.S Engenharia e Construtora
Como é morar no Edifício Sinésio
Áreas de Convívio e Lazer
Bicicletário
Brinquedoteca
Business place
Churrasqueira
Elevador serviço
Elevador social
Espaço gourmet
Fire Place
Fitness
Lavanderia
Piscina Adulto
Portaria
Sala de jogos
Salão de festas
Segurança 24 horas
Terraço Coletivo






























