Apartamento à venda com 32m², 2 quartos com vaga
Indique este imóvel e ganhe até R$ 1.453
🔥 BLACK FRIDAY
Evento ExclusivoPrimeiro Imóvel
3 encontros online • FGTS + cashback R$ 4 mil*
+5.000 famílias atendidas • 100% Grátis
*Termos e condições se aplicam
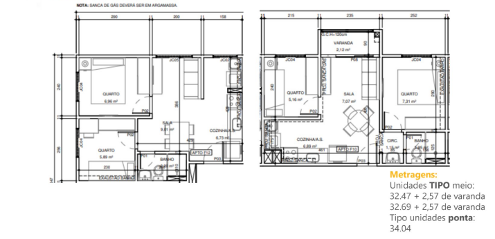
Opções de planta
32 m²
2 Quartos
1 vagas
1 banheiros
Localização
Avenida Raimundo Pereira de Magalhães, 6361 - Jardim Cidade Pirituba - SP
Estágio da Obra
Lançamento
Incorporadora
MRV
Como é morar no Cidade Sete Sóis - Nascente Sempre Viva
Áreas de Convívio e Lazer
Bicicletário
Churrasqueira
Elevador social
Espaço gourmet
Fitness ao ar livre
Jardim
Portaria
Praça
Quadra esportiva
Salão de festas
Segurança 24 horas




























