Apartamento à venda com 35m², 2 quartos com vaga
Indique este imóvel e ganhe até R$ 1.790
🔥 BLACK FRIDAY
Evento ExclusivoPrimeiro Imóvel
3 encontros online • FGTS + cashback R$ 4 mil*
+5.000 famílias atendidas • 100% Grátis
*Termos e condições se aplicam
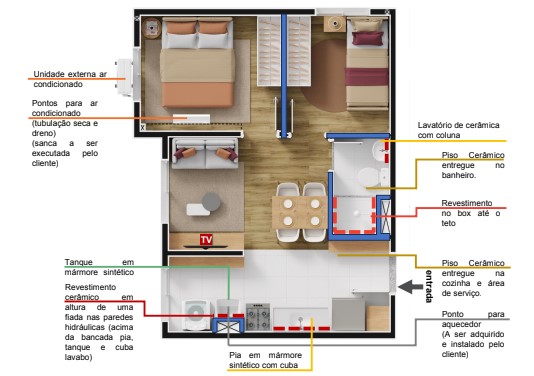
Opções de planta
35 m²
2 Quartos
1 vagas
1 banheiros
Localização
Rua Zike Tuma, 1124 - Jardim Ubirajara (Zona Sul) - SP
Estágio da Obra
Em Obras
Incorporadora
HM Engenharia
Como é morar no HM Smart Zike Tuma
Áreas de Convívio e Lazer
Brinquedoteca
Business place
Churrasqueira
Elevador social
Fitness
Pet Place
Piscina Adulto
Piscina infantil
Playground
Portaria
Quadra esportiva
Salão de festas
Segurança 24 horas
Solarium















