Apartamento à venda com 84m², 1 quarto sem vaga
Indique este imóvel e ganhe até R$ 11.609
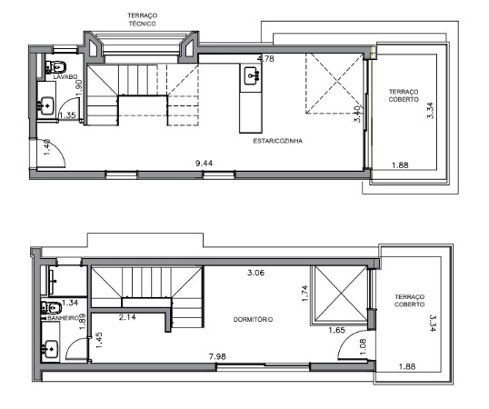
Opções de planta
84 m²
1 Quartos
0 vagas
1 banheiros
Localização
Alameda Franca, 1304 - Jardim Paulista - SP
Estágio da Obra
Em Obras
Incorporadora
Pivô
Como é morar no Pivô Match Al. Franca
Áreas de Convívio e Lazer
Bicicletário
Elevador social
Espaço gourmet
Fitness
Lavanderia
Lounge
Piscina Adulto
Piscina Aquecida
Piscina infantil
Portaria
Pub
Segurança 24 horas














