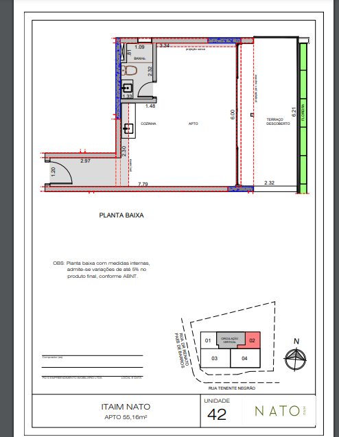
Apartamento à venda com 55m², 1 quarto com vaga
Indique este imóvel e ganhe até R$ 7.427
Opções de planta
55 m²
1 Quartos
1 vagas
1 banheiros
Localização
Rua Doutor Renato Paes de Barros, 735 - Itaim Bibi - SP
Estágio da Obra
Pronto
Entrega estimada
01/2025
Incorporadora
Paes&Gregori
Como é morar no Nato Itaim
Áreas de Convívio e Lazer
Brinquedoteca
Elevador social
Espaço gourmet
Fitness
Lavanderia
Pet Place
Piscina Adulto
Piscina infantil
Portaria
Segurança 24 horas
Solarium































