Apartamento à venda com 87m², 3 quartos com vaga
Indique este imóvel e ganhe até R$ 5.575
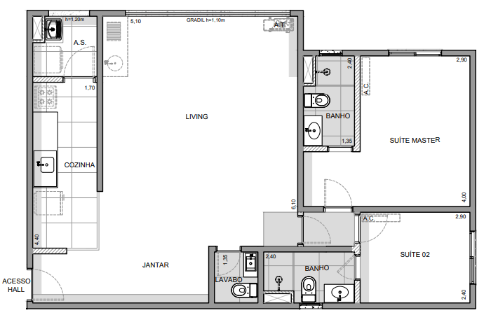
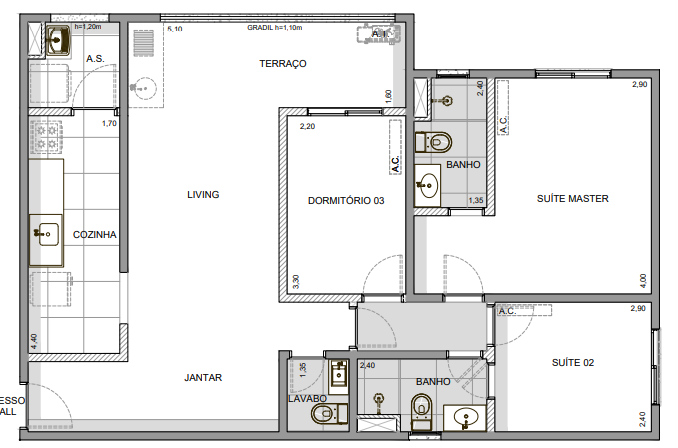
Opções de planta
87 m²
3 Quartos
1 vagas
2 banheiros
Localização
Avenida Pirajussara, 4123 - Butantã - SP
Estágio da Obra
Pronto
Entrega estimada
11/2025
Incorporadora
Exto
Como é morar no Blue Home Resort Jockey
Áreas de Convívio e Lazer
Brinquedoteca
Business place
Churrasqueira
Deck molhado
Elevador social
Espaço gourmet
Estacionamento
Fitness
Fitness ao ar livre
Jardim
Pet Place
Piscina Adulto
Piscina infantil
Playground
Portaria
Praça
Quadra esportiva
Sala de jogos
Salão de festas
Segurança 24 horas
Solarium
Spa
Varanda ou terraço





























